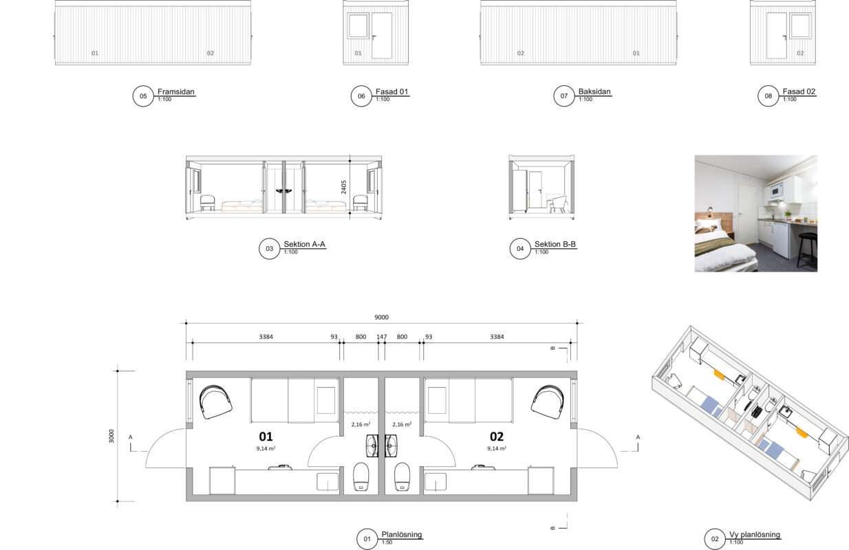
Stort antal boendemoduler i lager
Vi har fått in ett stort antal boendemoduler som är tillverkade av en av Sveriges främsta modultillverkare Kubly. Modulerna håller hög standard och har alla bekvämligheter man kan önska. Varje modul är uppdelad i två lägenheter som är avdelade med en skiljevägg mellan badrummen. Skiljeväggen är grövre och har extra ljud- och brandisolerande egenskaper.
Varje lägenhet är utrustad med fast inredning/utrustning som:
- Fullt utrustat kök med modern mikrovågsugn och kylskåp med frysfack.
- Köksskåp
- Bänkskiva med utrymme för sittplats
- Ventilationsaggregat med värmeåtervinning VL-50
Vi erbjuder även anpassade tillval som:
- Garderob
- Säng
- Sittpall vid bänk
- Fåtölj
